

НАЗНАЧЕНИЕ
Многофункциональный гигабитный коммутатор СТС-185 предназначен для построения сетей IP-видеонаблюдения.
ОБЛАСТИ ПРИМЕНЕНИЯ
- комплекс средств видеоконтроля «Синергет СВК»
ИСПОЛНЕНИЕ
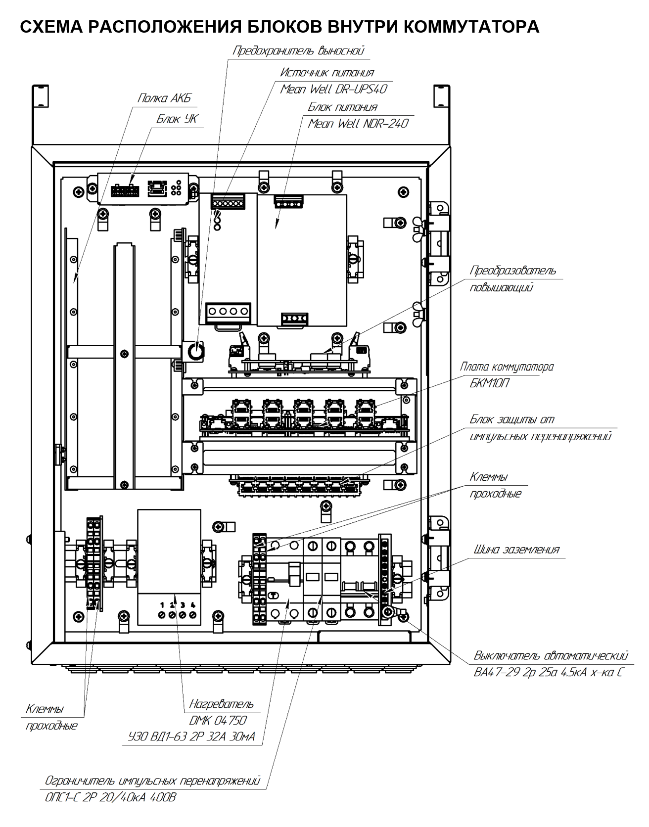
- выполнен в металлическом корпусе с запирающейся на два замка дверью, оснащенном защитным заземлением, и укомплектован съемной монтажной панелью для установки электрооборудования
- оснащен встроенными источником бесперебойного питания и сплайс-кассетой
- оборудован микропереключателем вскрытия, автоматическим выключателем напряжения электропитания, встроенными модулями грозозащиты, системой управления климатом и воздушным фильтром
- корпус оснащен солнцезащитным козырьком, уплотнителем по периметру двери и защитным желобом, предохраняющими от попадания внутрь грязи и воды
- внутренние поверхности стенок и двери покрыты термостойким утеплителем
ВОЗМОЖНОСТИ
- подключение РоЕ-устройств мощностью до 25 Вт к каждому из 10 портов
- автоматическое определение подключаемых устройств
- защита от несанкционированного доступа к оборудованию внутри корпуса
- обогрев АКБ в холодное время года
ОСОБЕННОСТИ
- защита от синфазных и дифференциальных электромагнитных помех для Ethernet портов и цепей питания от сети 220 В
- регуляция температуры и поддержание внутри корпуса микроклимата, необходимого для нормальной работы установленного в нем оборудования, в соответствии с показателями термодатчика
КОМПЛЕКТ ПОСТАВКИ
Наименование |
Кол-во |
Коммутатор СТС-185 |
1 шт. |
Комплект монтажных частей |
1 к-т |
Упаковка |
1 шт. |
Формуляр |
1 экз. |
Руководство по эксплуатации |
* |
*При поставке партии изделий или изделия в составе комплекса руководство по эксплуатации поставляется в одном экземпляре. При единичной поставке руководство по эксплуатации поставляется на каждое изделие. |
|
НАДЕЖНОСТЬ И ГАРАНТИЯ
- Гарантийный срок эксплуатации – 3 года.
- Назначенный срок службы – не менее 5 лет.
Наименование параметра |
Значение |
Напряжение электропитания переменного тока системы термостатирования, В/Гц |
220(±10%)/50 |
Номинальный ток автоматического выключателя напряжения питания, А |
32 |
Потребляемая мощность, не более, Вт |
380 |
Напряжение электропитания постоянного тока блока УК, В |
12–24 |
Поддержание внутренней регулируемой температуры, °С |
от 0 до +50 |
Включение вентиляции при температуре, от, °С |
+35 |
Количество разъемов, шт.: - 8P8C - SFP |
10 2 |
Количество коммутируемых портов Auto MDI/MDIX с поддержкой РоЕ, шт. |
10 |
Стандарт РоЕ |
IEEE 802.3 af/at |
Скорость передачи данных, Мбит/с: - Ethernet (8P8C) - SFP (оптический порт) |
10/100/1000 1000 |
Расстояние передачи данных (информации), дальность действия, м: - по кабелю UTP-5e - по оптическому кабелю |
до 100 до 20200 |
Максимальная мощность РоЕ на один порт, Вт |
25 |
Суммарная мощность подключаемых устройств по РоЕ, Вт* |
250* |
Вариант исполнения |
уличный |
Степень защиты |
IP66 |
Габаритные размеры (без козырька), мм |
560х400х260 |
Диапазон рабочих температур, °С |
от −40 до +50 |
Масса, не более, кг |
26 |
Характеристики оптической линии |
|
Тип кабеля |
SМ 9/125 μm |
Рабочая длина волны, нм |
1310 |
Тип разъема |
2xLC |
Примечание – суммарная мощность, отмеченная знаком «*», распределяется по группам портов коммутатора следующим образом: - для первой группы – 90 Вт; - для второй группы – 90 Вт; - для третьей группы –70 Вт. |
|
Производитель оставляет за собой право вносить изменения в технические и иные характеристики изделий для улучшения их эксплуатационных и технических параметров без предварительного уведомления потребителя.
